为更安全、智能、环保、健康、舒适生活贡献自己的力量
Security, intelligence, environmental, health, comfort
产品中心  当前位置:首页 » 产品列表 » 球阀
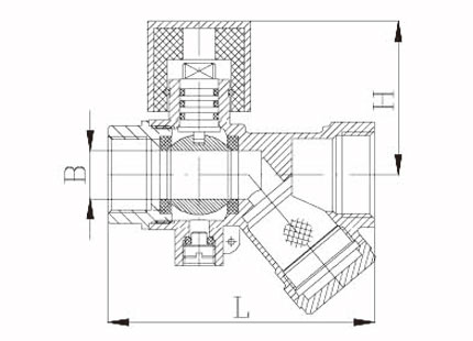
FM-1500 磁控测温过滤器球阀

DN SIZE H L B
20 3/4" 48 90 15
25 1" 50 96 19
32 1 1/4" 55 118 23

技术规范:

1.公称压力:1.6MPa
2.公称介质:冷热水、燃气、油等
3.工作温度:-20 ℃ ≤ T ≤120 ℃
4.测试压力符合 ISO5208 标准
5.管螺纹符合 ISO228标准
 

凯瑞奇产品系列 | 球阀 | 电动闸阀 | 温控阀 | 分集水器 | 混水系统 | 闸阀 | 截止阀 | 平衡阀、减压阀 | 管件 | 法兰 | 卫浴
版权所有©(2014-2016)浙江凯瑞奇流体智控有限公司 电话:0576-87349898   

0
<p align=left>离开 售前咨询
<p align=left>离开 技术支持